第3回不動産プランコンペを開催!上位入賞者が発表されました|2025年3月度AWARD

ADIでは、2025年2月13日、第3回不動産プランコンペを開催しました。過去最高となる122名92組が参加し、いかに収益性の高いプランを作成できるかを競いました。一次審査では「法令遵守」と「レギュレーション適合」を基準に上位10チームが選出され、最終審査では「収益性」を軸に粗利益の高い順で評価されました。
プランコンペ概要

課題地 :東京都葛飾区
敷地面積:487.78㎡
前面道路:北側6m、西側4m
用途地域:第一種住居地域
高度地区:第二種高度地区
防火地域:準防火地域
日影規制:4-2.5h/4m
建蔽率/容積率:60%/200%
※実際の敷地をもとに規制等コンペ用に調整
ADIのプランコンペは、「収益性の最大化」を重要な要素の一つとしながらも、長期的な視点で不動産運用の最適解を導き出すことを目的にしています。ADIでは、不動産開発に関わる社員がプランニングに対する理解を深め、より実践的なスキルを培い、将来的なプロジェクトの質を高める機会として、定期的にプランコンペを開催しています。 プランニングを専門とする社員だけでなく、営業担当や他部署の社員も参加し、部門を越えて意見を交わしながら、実践的なスキルを高めています。営業担当がプランニングの視点を持つことで、土地仕入れに対する判断スピードが向上し、従来1週間以上かかっていた意思決定を半日で完了できる体制を実現。これにより、成約率アップや売主様・仲介担当者との信頼構築にもつながっています。
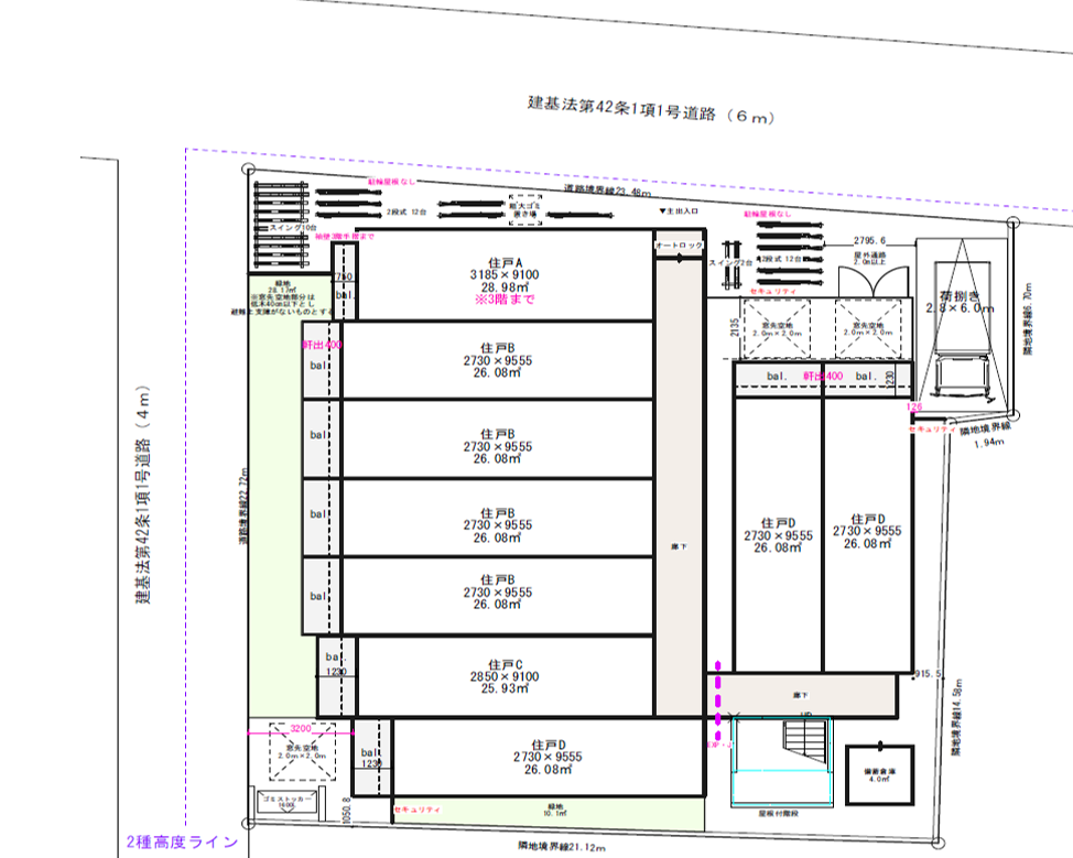
プランコンペ結果

売価 :623,000,000円
構造 :鉄骨造4階建
総戸数 :35戸
間取り :1K×35
専有面積:920.9㎡
この度、1位という評価をいただけて大変嬉しく思います。
今回の結果は、長谷川さんのコンペに懸ける熱意が形となったものだと感じています。土地の分析や住戸構成の検討を迅速に進めたことで、早い段階で方向性が定まり、設計もスムーズに進めることができました。
チームとして一緒に挑戦できたことは、非常に学びの多い経験でした。
今回、初めてプランコンペに参加しました。土地のパフォーマンスを最大化する提案を通じて、ADIの建築の根幹となる業務を実践的に学ぶ貴重な機会となりました。また、設計・安齋さんの豊富な知識と経験に触れることができ、とても有意義な時間を過ごせたと感じています。

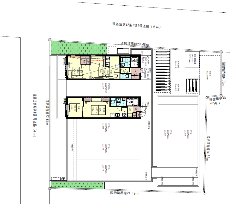
売価 :598,000,000円
構造 :鉄骨造4階建
総戸数 :31戸
間取り :1K×24、1LDK×7
専有面積:896.3㎡
この度、すばらしい賞をいただくことができ、心から嬉しく思っています。
入社以来、設計業務に携わっており、プラン作図は日々向き合ってきた大切な仕事のひとつです。多くの設計担当者が参加する中で評価をいただけたことは、驚きとともに大きな励みになりました。
これからも、より一層努力してまいります。
久しぶりにプラン検討を行い、フロント業務に携わっていた懐かしい記憶がよみがえりました。設計や工事の方々と意見を交わしながら、より良い提案を目指していた頃を思い出しました。ADIの社員には、部署問わず、プロダクトへの強い熱意があると感じることが多くあります。現在は総合リスク管理部に所属しており、バックヤードからフロント業務を担当する皆さんを支援する立場ですが、フロントでの経験を忘れず、オーナー様や社員の皆さんへの敬意を持って、自分の役割を果たしていきたいと思います。
昨年は参加を見送っていましたが、今年は思い切って挑戦してみました。プラン作成もツール使用も初めてでしたが、逆に気軽な気持ちで取り組めたのが良かったです。設計の過程やツールの使い方、条例との向き合い方など、社内の新たな一面を知ることができ、とても貴重な経験でした。

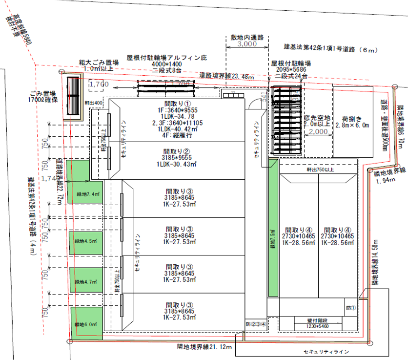
売価 :599,000,000円
構造 :鉄骨造4階建
総戸数 :31戸
間取り :1K×24、1LDK×7
専有面積:906.3㎡
ペアで意見を交わしながら楽しく参加でき、何度もレギュレーションを確認したことが結果につながったと感じています。
来年は1位を目指して、さらに頑張ります!
パートナーの優れたプランニングと、限られた時間の中で多角的な検証ができた成果だと感じています。
プランニングにあたり、街の特性や入居者像を踏まえた経済合理性を意識しました。レギュレーションや規制により限られている中で、普段のValuation業務を活かすことができ、少しは貢献できたように感じます。プラン作成の知識はありませんでしたが、住宅設計の基本を学ぶ貴重な機会となりました。
ADIは今後も、多角的な視点を取り入れながら、ステークホルダーの要望に応じた不動産運用の最適解を提案していきます。
THE AWARDとは
「THE AWARD」は、ADIのフィロソフィーである「美しい暮らし方を住まいから」を体現する取り組みを目に見える形で表彰することで、社員の「自発的」かつ「クリエイティブ」な提案を促進することを目的として2022年に制定された社内表彰制度です。一定の成果を残したチーム(もしくは個人)に対し、表彰を行います。毎月開催している全社員参加型の会議の場で、受賞者を表彰し、社員のエンゲージメント向上や自己研鑽に繋がるきっかけを創出します。