北綾瀬で北欧スタイルのリノベーション住宅を公開
~木の温もりと洗練されたカラーリングが調和する、居心地の良い空間づくり~

再開発が進む北綾瀬で、街と調和する新しい住まいを創出
株式会社アーキテクト・ディベロッパー(本社:東京都中央区銀座、代表取締役社長:木本 啓紀、以下「ADI」)は、東京都足立区の再開発エリア「北綾瀬」にて、リノベーションプロジェクト「アリススプリングス綾瀬」の2室を手掛け、2025年秋に施工が完了しました。
同プロジェクトは、単なるバリューアップではなく、“住む人のライフスタイルを的確に捉えた空間設計”をテーマに、ペルソナ分析とデザイン戦略を融合させたリノベーション事例です。
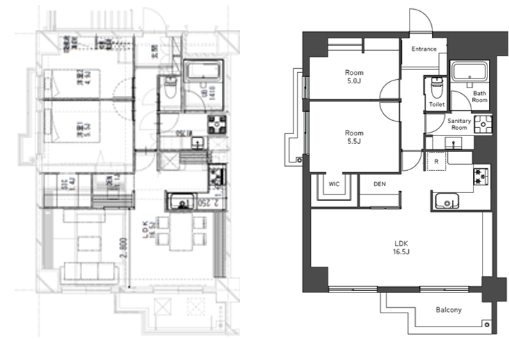
Before→After

イメージパース

「デザイン性と機能性を兼ね備えた住空間」へのこだわり
当物件ではペルソナを「千代田線沿いに勤める共働き夫婦+小さな子どもがいる家庭」と設定。
都心へのアクセスの良さと、街の落ち着きや暮らしやすさを両立させたいというニーズに着目しました。

平日はフルタイムで働き、週末は近隣の公園や駅前のショッピングモールへ出かけて親子の時間を楽しむ。そんなライフスタイルを前提に、室内の動線や収納の工夫、光の入り方までを細やかに設計。
築年数を重ねた物件でありながらも、デザイン性と機能性を兼ね備えた住空間として再生し、高賃料での成約を実現しています。
デザインコンセプトと設計の工夫
室内のデザインコンセプトは「Scandinavian Style(スカンジナビアンスタイル)」。
スウェーデン・ノルウェー・デンマークの3か国から成るスカンジナビア地域にインスパイアされた、“スッキリとしたカラーリングの中に木の温もりを取り入れた、居心地の良い空間”をコンセプトに設計しました。

淡いグレーを基調にした室内には、木目のフロアとやわらかなタイル模様を組み合わせ、北欧らしい心地よさと穏やかな温もりを表現。キッチンやリビングにはアクセントとなるブラックフレームのパーテーションを採用し、限られた空間の中に立体感を演出しています。
自然光を取り込みながらも、落ち着いたトーンで統一したインテリアは、家族がリラックスして過ごせる上質な空間へと仕上がりました。

物件概要
物件名 :アリススプリングス綾瀬
所在地 :東京都足立区東和5-9-6
構造階数 :鉄筋コンクリート造 7階建
築年数 :1995年3月(築30年)
今後の展望
ADIでは地域特性や入居者ニーズを踏まえたリノベーションを通じて、中古住宅や賃貸物件の再生プロジェクトを積極的に展開しています。
今後も『美しい暮らし方を住まいから』という企業理念のもと、人々の暮らしに貢献する企業として不動産運用の最適解を創造し、豊かな未来の実現を目指してまいります。
【お問い合わせ先】
architect developer, Inc.
株式会社アーキテクト・ディベロッパー
経営企画部 広報課
Email:koho@adi.jp